Trilocale in vendita

Bovezzo, via Venezia
€ 159.000
Prezzo aggiornato
3 locali 3 locali
98 Mq 98 Mq
1 bagno 1 bagno

Trilocale in vendita

Bovezzo, via Venezia

Descrizione annuncio

La palazzina

Edificata negli anni ’70, priva di ascensore, si compone di 10 unità abitative distribuite su quattro piani fuori terra (piano rialzato più tre superiori).
È circondata da una zona verde comune e da un cortile condominiale, offrendo ai residenti un contesto tranquillo e al tempo stesso vicino ai principali servizi.

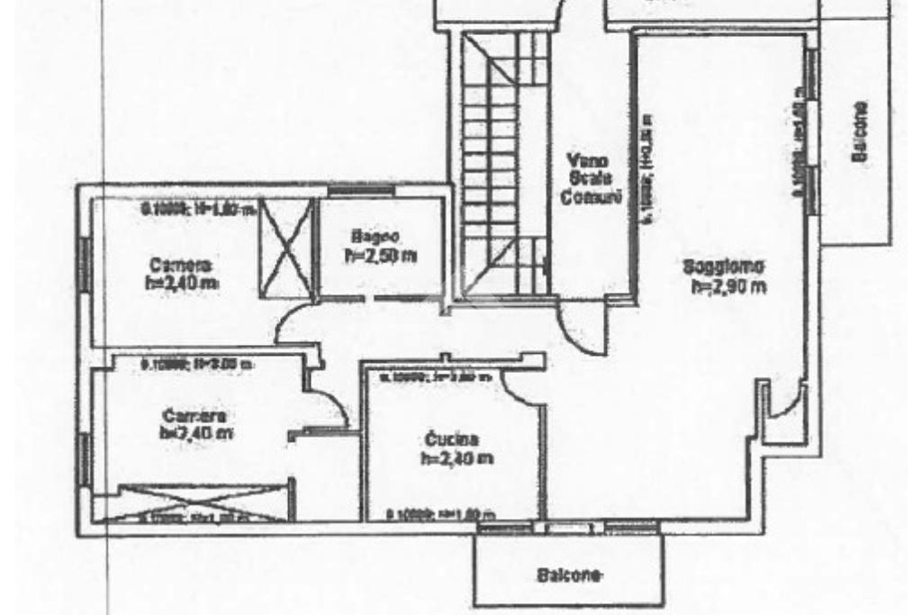
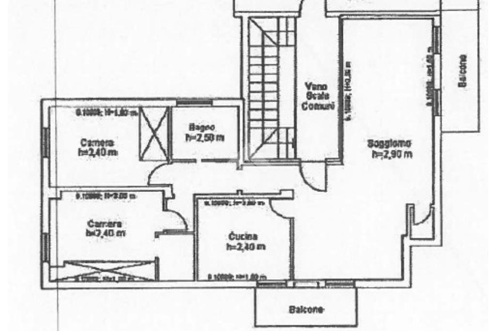
L’appartamento

situato all’ultimo piano, mansardato, è predisposto per la climatizzazione e ha beneficiato di una ristrutturazione tra il 2023 e il 2024, che ha interessato impianti, pavimentazioni, infissi e bagno.

Gli ambienti luminosi sono valorizzati dalla scelta del bianco per serramenti e porte interne, conferendo un’atmosfera ariosa e moderna.
L’ingresso si apre su un soggiorno accogliente, con zona pranzo e doppio accesso esterno: uno al balcone e l’altro a un terrazzino a tasca ideale per momenti di relax.
La cucina, separata e abitabile, affaccia anch’essa sul terrazzino.

Il reparto notte, preceduto da un comodo disimpegno, ospita due camere da letto, di cui una dotata di cabina armadio, e un bagno finestrato con box doccia.

A completare la soluzione box auto e cantina di pertinenza.

La zona

Bovezzo è un comune situato nella Valle del Garza, alla confluenza con la Val Trompia, di cui fa parte. Appartiene alla Comunità Montana della Valle Trompia e si trova a circa 7,5 km da Brescia, in una posizione tranquilla ma ben collegata con la città.

Oltre al centro principale, il territorio comunale comprende le località di Conicchio e del Villaggio del Sole.
La fermata della metropolitana Prealpino dista circa 3 km ed è facilmente raggiungibile con le linee autobus n. 10 e n. 7.

Il paese dispone di tutti i principali servizi comunali e offre una buona dotazione scolastica: due scuole dell’infanzia (una statale e una paritaria), una scuola primaria (statale) e la scuola secondaria di primo grado “A. Vivaldi” (statale).

Mostra tutto

Nelle vicinanze

Trasporto pubblico Trasporto pubblico
Prealpino
Prealpino
1,4 Km
Casazza
Casazza
1,7 Km
Bovezzo via Veneto n 48
Bovezzo via Veneto n 48
60 m
Bovezzo via Veneto n 35
Bovezzo via Veneto n 35
70 m
Ricariche auto elettriche Ricariche auto elettriche
A2A Villaggio Pealpino
860 m
A2A Concesio Kennedy
1,5 Km
A2A Biblioteca comunale di Concesio
2,4 Km
A2A Facoltà di Ingegneria
2,8 Km
A2A Municipio DI CONCESIO
2,9 Km
Scuole Scuole
Scuola dell'Infanzia Gianni Rodari
200 m
Scuole
250 m
Scuola Primaria Carlo Collodi
280 m
Scuola Primaria Paolo Borsellino e Giovanni Falcone
1,2 Km
Scuola Audiofonetica
1,6 Km
Farmacia Farmacia
Farmacia De Michelis
300 m
Farmacia Comunale di Bovezzo
370 m
Farmacia Vincoli
1,2 Km
Parafarmacia Conad
1,7 Km
Farmacia Comunale 10 Casazza
2,0 Km
Ospedali Ospedali
Nikolajewka
2,7 Km
Supermercati Supermercati
Auchan
460 m
Dpiù Discount
480 m
bennet
1,1 Km
MD
1,2 Km
Italmark
1,4 Km
Negozi Negozi
La Coccinella
100 m
Negozi
120 m
Forneria Fratelli Ghidini
290 m
Tomasoni
290 m
Intimo così
1,2 Km
Bar Bar
Adry Bar
700 m
Godiva
910 m
La Caffetteria
1,1 Km
Bar
2,4 Km
Ristoranti Ristoranti
Pizzeria Il Nuovo Corsaro
80 m
Pizza Mare Blu
320 m
Pizzeria Principessa Menna
430 m
Ristorante Nuovo Inizio
610 m
Ristorante Pizzeria Cà Ecia
650 m
Mostra tutto

Caratteristiche

Rif.:
61133169
Piano:
3 di 4 (ultimo Piano)
Box:
1
Balconi:
1
Terrazzi:
1
Camere da letto:
2
Mostra tutto
Prezzo Prezzo
€ 159.000
Rata mutuo Rata mutuo
€ 749 / mese
Spese annue Spese annue
€ 1.050
Proponi il tuo prezzoProponi il tuo prezzo
Immobile valutato con T·Valuta

Classe Energetica

A2
A2
A2
A2
A2
A2
A2
A2
A2
EP globale non rinnovabile:
63.94 kW h/m² anno
EP globale rinnovabile:
29.10 kW h/m² anno
EP invernale del fabbricato:
EP estiva del fabbricato:
Anno di costruzione:
1970
Riscaldamento:
Centralizzato
Tipo impianto:
A radiatori
Tipo alimentazione:
Altro

Prezzo ridotto di €1 (4%%)

Ti interessa visionare l'immobile?

Fissa un appuntamento  Fissa un appuntamento

Richiedi informazioni

Clicca su Leggi per aprire l'informativa
* Questi campi sono obbligatori

Calcola il tuo mutuo

Semplice e senza impegno
Anticipo

( % )
Mutuo

( % )

pochi semplici passi

inserisci i tuoi dati
Questionario completato
Grazie per aver richiesto un appuntamento senza impegno con un nostro Consulente del Credito e Assicurativo.

Hai inserito correttamente tutti i dati necessari e a breve riceverai una e-mail con un link da convalidare per inviare i tuoi dati.
Affiliato
Studio Bona Srl
Via Vittorio Veneto, 36 25073 Bovezzo (BS)

Il nostro staff


  • Armando Iorio
    Affiliato

  • Daniela Cinelli
    Coordinatrice

  • Simone Fidotta
    Collaboratore

  • Gabriele Amicucci
    Responsabile

  • Maurizio Pulvirenti
    Affiliato

  • Luigi Iorio
    Affiliato

  • Gabriel Rovetta
    Collaboratore
Via Vittorio Veneto, 36 25073 Bovezzo (BS)
Zona: Bovezzo-Nave
Mostra su mappa
Affiliato
Studio Bona Srl
Via Vittorio Veneto, 36 25073 Bovezzo (BS)

2026 Tecnocasa Franchising S.p.A. - P. IVA 08365160152 - Via Monte Bianco 60/A 20089 Rozzano (MI). Ogni agenzia ha un proprio titolare ed è autonoma. Privacy policy | Policy utilizzo | Cookie policy