Casa di corte in vendita

Bovezzo, via Guglielmo Marconi
€ 149.000
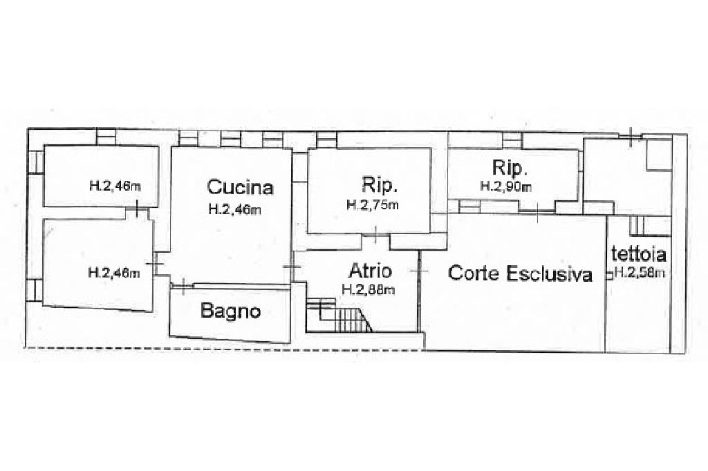
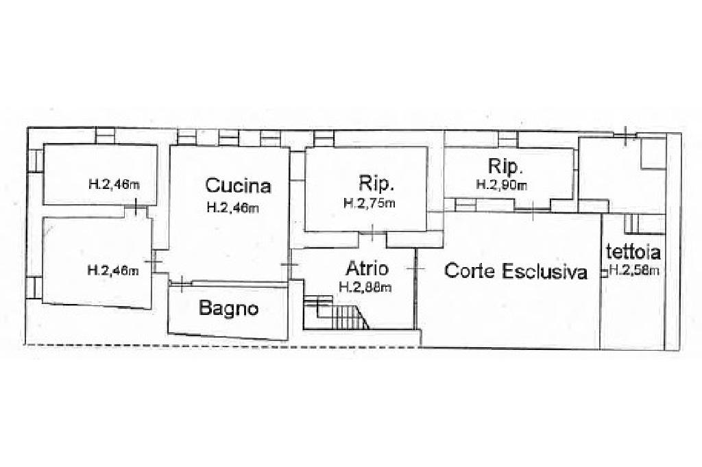
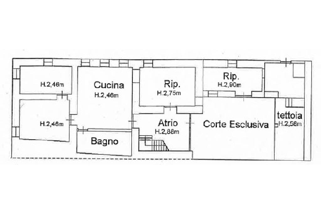
10 locali 10 locali
260 Mq 260 Mq
1 bagno 1 bagno

Casa di corte in vendita

Bovezzo, via Guglielmo Marconi

Descrizione annuncio

La casa:

da riattare, disposta su due livelli più sottotetto praticabile, sorge nel cuore storico del paese.

Dispone di porzione di corte e di un porticato a uso esclusivo.

La necessaria ristrutturazione permette di rivedere la distribuzione degli spazi interni, adattandoli alle singole necessità.

L'impianto di riscaldamento non è a oggi presente; con i lavori da fare, si può optare per la soluzione ritenuta più pratica e funzionale.

La zona

Bovezzo è un comune situato nella Valle del Garza, alla confluenza con la Val Trompia, di cui fa parte. Appartiene alla Comunità Montana della Valle Trompia e si trova a circa 7,5 km da Brescia, in una posizione tranquilla ma ben collegata con la città.

Oltre al centro principale, il territorio comunale comprende le località di Conicchio e del Villaggio del Sole.
La fermata della metropolitana Prealpino dista circa 3 km ed è facilmente raggiungibile con le linee autobus n. 10 e n. 7.

Il paese dispone di tutti i principali servizi comunali e offre una buona dotazione scolastica: due scuole dell’infanzia (una statale e una paritaria), una scuola primaria (statale) e la scuola secondaria di primo grado “A. Vivaldi” (statale).

-----------

“Le immagini relative al presente annuncio hanno carattere puramente illustrativo e non costituiscono elemento

Mostra tutto

Nelle vicinanze

Trasporto pubblico Trasporto pubblico
Prealpino
Prealpino
1,9 Km
Casazza
Casazza
2,2 Km
Bovezzo P.le Rota n 15 (cap.extraurbano)
Bovezzo P.le Rota n 15 (cap.extraurbano)
140 m
Bovezzo via Veneto n 21
Bovezzo via Veneto n 21
330 m
Ricariche auto elettriche Ricariche auto elettriche
A2A Concesio Kennedy
1,3 Km
A2A Villaggio Pealpino
1,4 Km
A2A Biblioteca comunale di Concesio
2,1 Km
A2A Municipio DI CONCESIO
2,7 Km
Scuole Scuole
Scuola Primaria Carlo Collodi
320 m
Scuola dell'Infanzia Gianni Rodari
400 m
Scuole
740 m
Scuola Primaria Paolo Borsellino e Giovanni Falcone
1,2 Km
Scuola Secondaria di Primo Grado
1,4 Km
Farmacia Farmacia
Farmacia Comunale di Bovezzo
230 m
Farmacia De Michelis
540 m
Farmacia Vincoli
1,7 Km
Parafarmacia Conad
2,3 Km
Farmacia Maffeis
2,4 Km
Supermercati Supermercati
Auchan
700 m
Dpiù Discount
980 m
MD
1,5 Km
bennet
1,5 Km
Eurospin
1,5 Km
Negozi Negozi
Negozi
20 m
La Coccinella
480 m
Tomasoni
590 m
Forneria Fratelli Ghidini
840 m
OVS Outlet
1,6 Km
Bar Bar
Adry Bar
480 m
Godiva
840 m
La Caffetteria
1,6 Km
Ristoranti Ristoranti
Ristorante Carne e Fuoco
110 m
Pizzeria Principessa Menna
580 m
Pizzeria Il Nuovo Corsaro
650 m
Pizza Mare Blu
900 m
Ristorante Pizzeria Cà Ecia
910 m
Mostra tutto

Caratteristiche

Rif.:
61120624
Piano:
Su più livelli di 2
Totale piani:
2
Posti auto:
2
Camere da letto:
3
Arredamento:
Assente
Mostra tutto
Prezzo Prezzo
€ 149.000
Rata mutuo Rata mutuo
€ 706 / mese
Spese annue Spese annue
€ 0
Proponi il tuo prezzoProponi il tuo prezzo

Classe Energetica

Questo immobile è esente da classe energetica
Anno di costruzione:
1860
Riscaldamento:
Assente

Ti interessa visionare l'immobile?

Fissa un appuntamento  Fissa un appuntamento

Richiedi informazioni

Clicca su Leggi per aprire l'informativa
* Questi campi sono obbligatori

Calcola il tuo mutuo

Semplice e senza impegno
Anticipo

( % )
Mutuo

( % )

pochi semplici passi

inserisci i tuoi dati
Questionario completato
Grazie per aver richiesto un appuntamento senza impegno con un nostro Consulente del Credito e Assicurativo.

Hai inserito correttamente tutti i dati necessari e a breve riceverai una e-mail con un link da convalidare per inviare i tuoi dati.
Affiliato
Studio Bona Srl
Via Vittorio Veneto, 36 25073 Bovezzo (BS)

Il nostro staff


  • Armando Iorio
    Affiliato

  • Daniela Cinelli
    Coordinatrice

  • Simone Fidotta
    Collaboratore

  • Gabriele Amicucci
    Responsabile

  • Maurizio Pulvirenti
    Affiliato

  • Luigi Iorio
    Affiliato

  • Gabriel Rovetta
    Collaboratore
Via Vittorio Veneto, 36 25073 Bovezzo (BS)
Zona: Bovezzo-Nave
Mostra su mappa
Affiliato
Studio Bona Srl
Via Vittorio Veneto, 36 25073 Bovezzo (BS)

2026 Tecnocasa Franchising S.p.A. - P. IVA 08365160152 - Via Monte Bianco 60/A 20089 Rozzano (MI). Ogni agenzia ha un proprio titolare ed è autonoma. Privacy policy | Policy utilizzo | Cookie policy