Quadrilocale in vendita

Nave, via Faldenno
€ 275.000
4 locali 4 locali
145 Mq 145 Mq
2 bagni 2 bagni

Quadrilocale in vendita

Nave, via Faldenno

Descrizione annuncio

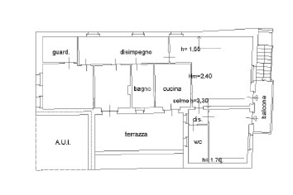
Il contesto:

degli anni 60, si compone di sole due unità abitative e sorge in zona tranquilla e circondata da una buona dose di spazi verdi.

L'appartamento:

al primo e ultimo piano, è stato oggetto di ristrutturazione completa nel 2008.

Le travi a vista in tutte le stanze e gli inseriti in pietra nella zona giorno conferiscono calore, carattere e autenticità agli ambienti.

L'ingresso, preceduto da una comoda balconata, affaccia direttamente sul soggiorno. Ampio e confortevole, con spazio per un bel tavolo da pranzo, è valorizzato dalla presenza della canna fumaria che consente di installare un'elegante stufa a pellet o un bel camino.

La cucina, semi-separata tramite un muretto all'americana, e abitabile, è fornita di accesso al terrazzo di 20 mq circa che offre una gradevole vista sul circondario e sulle montagne.

Le tre camere sono due matrimoniali, di cui una con cabina armadio, e una doppia, dotata di accesso al terrazzo. Una delle due stanze da letto grandi gode di accesso indipendente dall'esterno, il che la rende ideale anche come studio professionale, ovvero come stanza per gli ospiti.

Da sottolineare le dimensioni generose del corridoio della zona notte, che permettono di realizzare un salottino intimo e riservato, o uno spazio da poter dedicare alla lettura, o anche di creare una zona verde che migliora il benessere abitativo, aggiungendo un valore estetico e funzionale.

Due i bagni. Entrambi finestrati, completi l'uno di box doccia, l'altro sia di doccia che di vasca.

Due posti auto privati perfezionano la proprietà.

La zona

Nave è un comune situato nella suggestiva Valle del Garza, insieme ai vicini paesi di Bovezzo e Caino. Il territorio comprende le frazioni di Cortine, Muratello, Monteclana e la località Dosso, offrendo un contesto residenziale tranquillo e ben integrato con la natura circostante.

Il paese si trova nella parte nord della provincia, a soli 9 km da Brescia, e gode di un’ottima connessione con la città grazie alla fermata metropolitana del Prealpino, raggiungibile in circa 5 km anche tramite autobus linea 7.

Nave dispone di tutti i principali servizi: Comune, presidio ASL, negozi, strutture sportive e spazi verdi. Per le famiglie, il territorio offre un’ampia scelta di scuole: cinque scuole dell’infanzia (due statali e tre paritarie), tre scuole primarie e la Scuola Secondaria di I grado “G. Galilei”, tutte statali.

-----------

“Le immagini relative al presente annuncio hanno carattere puramente illustrativo e non costituiscono elemento

Mostra tutto

Nelle vicinanze

Trasporto pubblico Trasporto pubblico
Via Trento fr.45 Capolinea
Via Trento fr.45 Capolinea
720 m
Via Trento 45 (scuole elementari)
Via Trento 45 (scuole elementari)
730 m
Scuole Scuole
Scuola Primaria Don Milani
840 m
Istituto Filosofico Salesiano
960 m
Scuola Secondaria di Primo Grado Galileo Galilei
1,3 Km
Scuola Primaria Anna Frank
1,7 Km
Scuola primaria Emiliano Rinaldini
2,2 Km
Farmacia Farmacia
Farmacia Sant'Orso
840 m
Farmacia Comunale
1,2 Km
Supermercati Supermercati
Family Market
1,2 Km
Italmark
2,7 Km
Negozi Negozi
Il Mulino di Buffoli
1,3 Km
Emma B.
1,8 Km
Panificio alimentari Dalmiani Nadia
1,9 Km
La Bottegabar
2,0 Km
Ristoranti Ristoranti
Agriturismo Dragoncello
460 m
Trattoria Vittoria
1,1 Km
Ristorante La Valle
1,2 Km
Trattoria da Waifro
1,5 Km
Pizzeria Manuno Jolly
1,6 Km
Mostra tutto

Caratteristiche

Rif.:
61111735
Piano:
1 di 2 (Piano basso)
Posti auto:
2
Balconi:
1
Terrazzi:
1
Camere da letto:
3
Mostra tutto
Prezzo Prezzo
€ 275.000
Rata mutuo Rata mutuo
€ 1.303 / mese
Spese annue Spese annue
€ 0
Proponi il tuo prezzoProponi il tuo prezzo
Immobile valutato con T·Valuta

Classe Energetica

Questo immobile è esente da classe energetica
Anno di costruzione:
1960
Riscaldamento:
Autonomo
Tipo impianto:
A radiatori
Tipo alimentazione:
Metano

Ti interessa visionare l'immobile?

Fissa un appuntamento  Fissa un appuntamento

Richiedi informazioni

Clicca su Leggi per aprire l'informativa
* Questi campi sono obbligatori

Calcola il tuo mutuo

Semplice e senza impegno
Anticipo

( % )
Mutuo

( % )

pochi semplici passi

inserisci i tuoi dati
Questionario completato
Grazie per aver richiesto un appuntamento senza impegno con un nostro Consulente del Credito e Assicurativo.

Hai inserito correttamente tutti i dati necessari e a breve riceverai una e-mail con un link da convalidare per inviare i tuoi dati.
Affiliato
Studio Bona Srl
Via Vittorio Veneto, 36 25073 Bovezzo (BS)

Il nostro staff


  • Armando Iorio
    Affiliato

  • Daniela Cinelli
    Coordinatrice

  • Simone Fidotta
    Collaboratore

  • Gabriele Amicucci
    Responsabile

  • Maurizio Pulvirenti
    Affiliato

  • Luigi Iorio
    Affiliato

  • Gabriel Rovetta
    Collaboratore
Via Vittorio Veneto, 36 25073 Bovezzo (BS)
Zona: Bovezzo-Nave
Mostra su mappa
Affiliato
Studio Bona Srl
Via Vittorio Veneto, 36 25073 Bovezzo (BS)

2026 Tecnocasa Franchising S.p.A. - P. IVA 08365160152 - Via Monte Bianco 60/A 20089 Rozzano (MI). Ogni agenzia ha un proprio titolare ed è autonoma. Privacy policy | Policy utilizzo | Cookie policy