Casa indipendente in vendita

Nave, via Trento
€ 299.000
7 locali 7 locali
580 Mq 580 Mq
2 bagni 2 bagni

Casa indipendente in vendita

Nave, via Trento

Descrizione annuncio

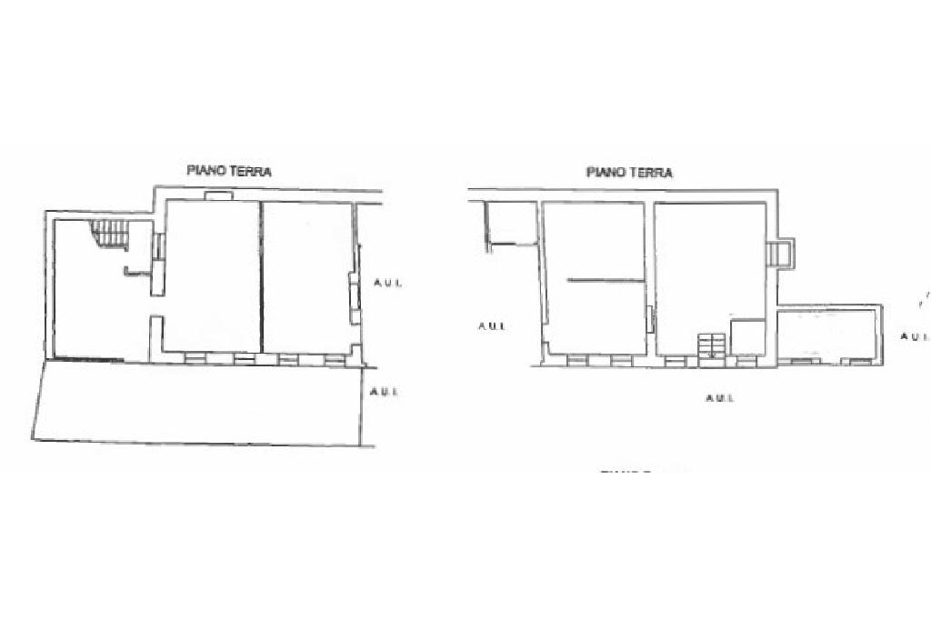
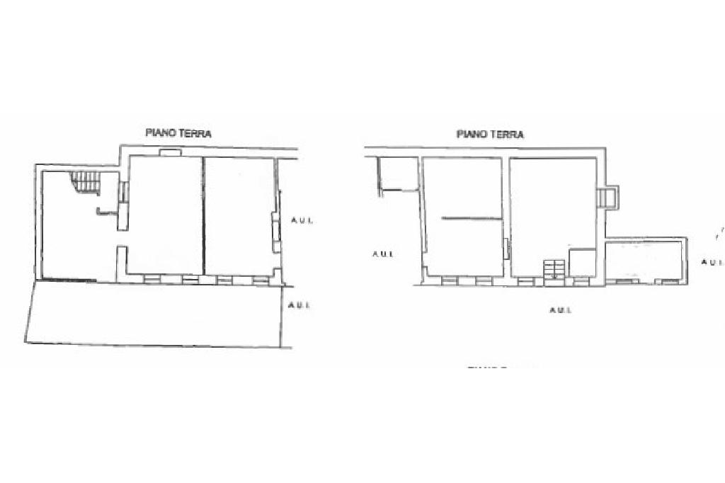
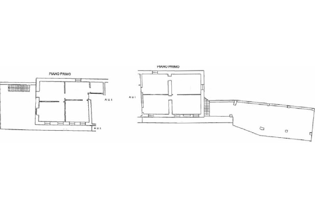
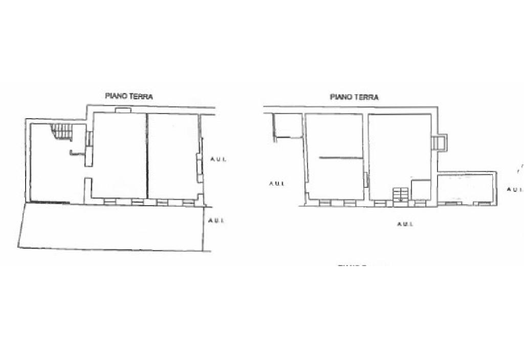
La casa:

degli anni '40, si presenta da ristrutturare.

Sorge in zona pedecollinare, con vista panoramica sulle montagne circostanti e sulla vallata che accoglie il paese di Nave. I 13.500 mq di terreno circostanti creano un valore aggiunto.

In aggiunta, vi è l'opportunità di acquistare il bosco ceduo attiguo alla proprietà, per una superficie pari a 60.000 mq.

Degna di nota la possibilitĂ  di realizzare un vigneto per la produzione di vino IGT 'Ronchi di Brescia'.


Gli interni:


distribuiti su due piani abitabili piĂš sottotetto, ad oggi sono organizzati in due unitĂ  abitative disposte a mo' di bifamiliare orizzontale.

Ciascuna delle due metĂ  offre un quadrilocale completo di bagno privato e box.

L'una è corredata di un disimpegno ad uso sgabuzzino, di una terrazza di 40 mq collegata a 13 mq di balcone e di una veranda adibita a lavanderia. L'altra dispone di due comodi ripostigli, di una cantina di 35 mq, con annessa una cantinetta piÚ piccola, e di una terrazza di ben 81 mq che vanno ad aggiungersi 13 mq di balconata. Entrambe sono completate da un sottotetto di circa 80 mq.

La necessaria ristrutturazione consente di rivedere spazi e ambienti, riorganizzandoli in base alle singole necessità. Si possono ad esempio mantenere i due subalterni cosÏ come si presentano, o, viceversa, ridistribuire i locali ricavando un appartamento al pianterreno e uno al piano primo. Ancora, si può valutare di ottenere una casa singola con spazi in abbondanza, da impiegare in modi diversi, dando libero sfogo alla propria creatività.

La zona

Nave è un comune situato nella suggestiva Valle del Garza, insieme ai vicini paesi di Bovezzo e Caino. Il territorio comprende le frazioni di Cortine, Muratello, Monteclana e la località Dosso, offrendo un contesto residenziale tranquillo e ben integrato con la natura circostante.

Il paese si trova nella parte nord della provincia, a soli 9 km da Brescia, e gode di un’ottima connessione con la città grazie alla fermata metropolitana del Prealpino, raggiungibile in circa 5 km anche tramite autobus linea 7.

Nave dispone di tutti i principali servizi: Comune, presidio ASL, negozi, strutture sportive e spazi verdi. Per le famiglie, il territorio offre un’ampia scelta di scuole: cinque scuole dell’infanzia (due statali e tre paritarie), tre scuole primarie e la Scuola Secondaria di I grado “G. Galilei”, tutte statali.

Mostra tutto

Nelle vicinanze

Trasporto pubblico Trasporto pubblico
Via Brescia 72
Via Brescia 72
70 m
Via Brescia fr. Scuole elementari
Via Brescia fr. Scuole elementari
80 m
Scuole Scuole
Scuola Primaria Don Milani
100 m
Istituto Filosofico Salesiano
450 m
Scuola Secondaria di Primo Grado Galileo Galilei
550 m
Scuola Primaria Anna Frank
1,3 Km
Scuola Primaria Paolo Borsellino e Giovanni Falcone
2,4 Km
Farmacia Farmacia
Farmacia Sant'Orso
190 m
Farmacia Comunale
760 m
Farmacia Tomasoni Dottor Giovanni
2,8 Km
Supermercati Supermercati
Family Market
700 m
Italmark
2,3 Km
Negozi Negozi
Il Mulino di Buffoli
940 m
Panificio alimentari Dalmiani Nadia
1,4 Km
Emma B.
1,8 Km
La Bottegabar
2,8 Km
Ristoranti Ristoranti
Trattoria Vittoria
410 m
Ristorante La Valle
650 m
Trattoria da Waifro
800 m
Agriturismo Dragoncello
1,1 Km
Pizzeria Manuno Jolly
1,1 Km
Mostra tutto

Caratteristiche

Rif.:
60564947
Piano:
Su piĂš livelli di 3
Totale piani:
3
Box:
2
Balconi:
1
Terrazzi:
2
Mostra tutto
Prezzo Prezzo
€ 299.000
Rata mutuo Rata mutuo
€ 1.393 / mese
Spese annue Spese annue
€ 0
Proponi il tuo prezzoProponi il tuo prezzo

Classe Energetica

G
G
G
G
G
G
G
G
G
EP globale non rinnovabile:
357.36 kW h/m² anno
EP globale rinnovabile:
0.36 kW h/m² anno
EP invernale del fabbricato:
EP estiva del fabbricato:
Anno di costruzione:
1940
Riscaldamento:
Autonomo
Tipo impianto:
A radiatori
Tipo alimentazione:
Metano

Ti interessa visionare l'immobile?

Fissa un appuntamento  Fissa un appuntamento

Richiedi informazioni

Clicca su Leggi per aprire l'informativa
* Questi campi sono obbligatori

Calcola il tuo mutuo

Semplice e senza impegno
Anticipo

( % )
Mutuo

( % )

pochi semplici passi

inserisci i tuoi dati
Questionario completato
Grazie per aver richiesto un appuntamento senza impegno con un nostro Consulente del Credito e Assicurativo.

Hai inserito correttamente tutti i dati necessari e a breve riceverai una e-mail con un link da convalidare per inviare i tuoi dati.
Affiliato
Studio Bona Srl
Via Vittorio Veneto, 36 25073 Bovezzo (BS)

Il nostro staff


  • Armando Iorio
    Affiliato

  • Daniela Cinelli
    Coordinatrice

  • Simone Fidotta
    Collaboratore

  • Gabriele Amicucci
    Responsabile

  • Maurizio Pulvirenti
    Affiliato

  • Luigi Iorio
    Affiliato

  • Gabriel Rovetta
    Collaboratore
Via Vittorio Veneto, 36 25073 Bovezzo (BS)
Zona: Bovezzo-Nave
Mostra su mappa
Affiliato
Studio Bona Srl
Via Vittorio Veneto, 36 25073 Bovezzo (BS)

2025 Tecnocasa Franchising S.p.A. - P. IVA 08365160152 - Via Monte Bianco 60/A 20089 Rozzano (MI). Ogni agenzia ha un proprio titolare ed è autonoma. Privacy policy | Policy utilizzo | Cookie policy